設計・工事監理の流れ/設計料

 

■設計・工事監理の流れ(住宅の場合)

①ご相談 電話・メール・FAX等でお気軽にお問い合わせ下さい。
調査・面談
約1ヶ月
  • ヒアリングに伺います。暮らし方に関するご要望やご予算などお聞かせ下さい。
  • 建築予定の敷地の調査を行います。物件の選定からお付き合いすることも可能です。
  • 既存建物の改修の場合は、建物の調査も行います。既存図面が十分にない場合は図面の復旧から行います。(追加の時間・報酬が必要です)
  • 建築関連法規を確認しながら、初回ご提案の内容を作成します。
research

△土地選定からご協力した事例

複数の候補物件に対して、

  • 古家付き土地での空き家改修の検討
  • 土地活用プランのご提案
  • 建築コストシミュレーション
  • 法的適合性の検証
  • 適正な土地価額の査定
  • 購入交渉の助言

など総合的なサポートを行いました。

最終的に選定された土地は当初の売値より2割程度低い坪単価で購入されています。
物件選定からご協力することで、建築プロジェクトの総費用を合理化できる可能性が高まります。
※査定により減額に成功した場合は、査定料を頂きます。

②初回ご提案 図面やCG、必要に応じて模型などご提示します。初回ご提案は無料です。
IWH-CG01 IWH-CG02

△初回ご提案の例

③設計監理契約 提案内容を気に入って頂けたら、お客様と弊社の間で設計監理委託契約を結び、本格的な設計に進みます。契約後の作業には設計料が発生します。
基本設計
約2ヶ月
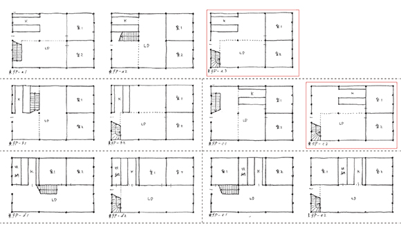
  • お客様と、毎月2回程度の打合せをしながら、建物のプラン(間取り)を決めていきます。
  • キッチンなどの住宅設備や家具などについてもご希望を伺います。
  • 随時、行政庁などと協議し、法適合性を確認しながら検討を進めます。
bd01

△新築プロジェクトでの初期検討の例。多くのプランを検討し、土地利用の可能性を最大化します。

bd02

△室内のプランニングについても多くの可能性を洗い出します。

bd03

△CGや模型を用いて多くの案を検討し、建築主のご要望を満たしつつ、都市的視点でもベストな建築のあり方を模索します。

実施設計
約2ヶ月
  • 基本設計で決定したプランを基に、サンプルをご提示したり、メーカーのショールームをご案内しながら、壁などの仕上げや家具や設備の仕様を具体的に決めていきます。
  • 細かな取り合いなども検討し、デザインを練り上げていきます。
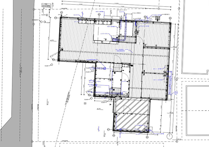
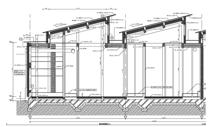
  • 見積用の図面(実施設計図)を作成します。
  • 随時、行政庁などと協議し、法適合性を確認しながら検討を進めます。
dd01 dd02 dd03 dd04

△見積用の図面(実施設計図)の例

見積調整・確認申請
約1~2ヶ月
  • 施工業者の候補から見積をとります。
  • 見積がご予算に合わない場合、お客様とご相談しながら減額案を作成します。
  • 競争原理を期待して、3者程度から「相見積」をとることもあります。
  • 減額調整が落ち着いたら確認申請を提出します。
shinsei

△確認申請提出書類の例

④工事請負契約 選定頂いた施工業者とお客様との間で工事請負契約を結んで頂きます。
⑤着工 「確認済証」が交付されたら、いよいよ着工です。
jichinsai

△地鎮祭

工事監理
約6ヶ月
  • 週1回程度現場に赴き、設計図通りに工事が進められているか確認し、施工業者と協議します。
  • 設計図を元に施工者が作成する「施工図」をチェックし、承認します。
  • 設計図通りに施工できない場合、施工業者と協議し、お客様の確認を得た上で設計変更を行います。(計画変更確認申請が必要になる場合もあります)
  • 法令上必要なる行政庁の検査を受検します。検査の申請・立ち会いを行います。
  • 引渡し前には、お客様による検査も行い、必要に応じて是正工事を行います。
  • お引渡し直前に、竣工写真の撮影を行います。
sv01

△工事中の現場に赴き、設計図通りに工事が進められているかチェックします。

sv02

△施工業者が作成する「施工図」を細かくチェックし、できあがる建築の質を担保します。

⑥お引渡し 是正工事が完了し、「検査済証」が交付されたら、お引渡しです。
IWH_photo02 IWH_photo02
メンテナンス
  • 建物を良い状態で永く使うためには、定期的な点検・保守が必要です。
  • お引渡し後、半年後・1年後・2年後の段階で点検に伺います。
  • お住まいになられて気になる点等ありましたら、随時ご連絡下さい。

 

■設計料について

個別にご相談させて頂きます。小さな仕事でもお気軽にお声掛け下さい。

  • 基本としては規定(平成31年国土交通省告示第98号など)に従い、業務に必要となる時間数を見積もることで設計料を算定しますが、ご事情によりご相談に応じます。
  • 工事費に対する設計料のパーセンテージは建築の規模や用途により大きく異なるため、プロジェクトごとに算出・ご提案させて頂いております。

 

copyrights belong to REGION STUDIES @ 2016